Wohnungen
Für jetzt, die Zukunft und jeden Bedarf
Mit LANDsPARK entsteht eine perfekte Balance beim Immobilieninvestment sowohl für Selbstnutzer, als auch für Kapitalanleger. Der Charme einer guten Altbausubstanz kombiniert mit der Modernität einer 2022er Renovierung. Mit dem neuen, hochwertigen Berliner Dielenfußboden ist Gemütlichkeit zusammen mit klassischem Purismus eingezogen, der viel Gestaltungsspielraum lässt. Die Immobilie besteht aus einem Vorderhaus mit 1-, 3- und 4-Zimmer-Wohnungen und Gewerbeeinheiten im Souterrain sowie dem im Innenhof der Wohnanlage gelegenen Hinterhaus, das eine 6- Zimmer Maisonette Wohnung mit eigenem Garten und eine weitere 3-Zimmer-Wohnung mit Balkon bietet. Hochwertige Basis für alle, Individualität für jeden: Auf jeder Quadratmeterzahl findet sich ein gehobener Qualitätsstandard ohne übermäßigen Luxusinvest. Mit neuen Dielen und Fliesen, modernen Badezimmern und frisch gespachtelten Wänden bietet jede Wohnpartei die ideale Grundlage. Wie das Leben darin stattfindet, bleibt ganz Ihnen überlassen. Sie können Eigentümer der bereits vermieteten oder der sofort bezugsfreien Wohnungen werden, selbst einziehen oder mittelfristig eigene Mieter finden. Sie können einen optimalen Platz für Arbeit und Leben oder die Familie schaffen. Und nicht zuletzt können Sie Eigentümer der Dachgeschossrohlinge werden und sich vom 4. bis 6. Stock selbst verwirklichen.
Bezugsfreie Eigentumswohnungen
Gartenhaus 1.OG links
MUSTERWOHNUNG WE-Nr. 15
Wohnfläche ca. 60 m²
Zimmer 3
1. Obergeschoss
Zentralheizung / Energieträger Gas
Modernes, neues Wannenbad
Neuer Dielenfußboden in den Wohnräumen
Ausgestattete Einbauküche
Neuer Südbalkon zum Innenhof (genehmigt,
Anbau Anfang 2023)
Gespachtelte Wände
Vollständig renoviert
-
Gartenhaus 1.OG links
MUSTERWOHNUNG WE-Nr. 15
Wohnfläche ca. 60 m²
Zimmer 3
1. Obergeschoss
Zentralheizung / Energieträger Gas
Modernes, neues Wannenbad
Neuer Dielenfußboden in den Wohnräumen
Ausgestattete Einbauküche
Neuer Südbalkon zum Innenhof (genehmigt,
Anbau Anfang 2023)
Gespachtelte Wände
Vollständig renoviert
Mit unserer Musterwohnung möchten wir Ihnen nur eines von vielen Potenzialen der bezugsfreien Wohnungen im Gartenhaus zeigen. Der Qualitäts- und Ausstattungsstandard ist in allen Wohnungen gleich, einzig die bereits vorhandene Küche unterscheidet die Musterwohnung von den anderen. Die zwei geschlossenen Zimmer können als Wohn-, Schlaf- oder Kinderzimmer gestaltet werden und bieten Platz für ein großzügiges Bett, eine Wohneinrichtung nach Ihrem Geschmack und für Stauraum. Das Durchgangszimmer eignet sich ideal als Esszimmer für größere Runden, als heller und freundlicher Arbeitsplatz, als Fläche für Fitness oder andere Hobbies oder als gemeinsamer, offener Wohnraum, wenn die anderen beiden Räume als Schlafzimmer genutzt werden sollen. Ihrer Individualität sind keine Grenzen gesetzt. Ob alleine, als Paar, Wohn- oder Arbeitsgemeinschaft oder als Familie. Alle Räume lassen sich nach Ihren Bedürfnissen gestalten. Der neue Südbalkon bietet einen Blick direkt auf die ruhige Gartenanlage. Und im Gegensatz zum typischen Berliner Schlauchbad haben Sie in diesem Badezimmer genügend Raum für die Gestaltung Ihrer eigenen Wohlfühloase.
Alle Aufnahmen stammen aus unserer Musterwohnung in der Landsberger Allee 36.
Die Einrichtung ist nicht Teil des Kaufgegenstandes und liefert nur ein
unverbindliches Einrichtungsbeispiel.
Gartenhaus 1.OG rechts
EIGENTUMSWOHNUNG WE-NR. 14
Wohnfläche ca. 68,14 m²
Zimmer 3
1. Oberschoss
Zentralheizung / Energieträger Gas
Modernes, neues Wannenbad
Neuer Dielenfußboden in den Wohnräumen
Neuer Fliesenbelag in der Küche
Neuer Südbalkon zum Innenhof (genehmigt,
Anbau Anfang 2023)
Gespachtelte Wände
Vollständig renoviert
-
Gartenhaus 1.OG rechts
EIGENTUMSWOHNUNG WE-NR. 14
Wohnfläche ca. 68,14 m²
Zimmer 3
1. Oberschoss
Zentralheizung / Energieträger Gas
Modernes, neues Wannenbad
Neuer Dielenfußboden in den Wohnräumen
Neuer Fliesenbelag in der Küche
Neuer Südbalkon zum Innenhof (genehmigt,
Anbau Anfang 2023)
Gespachtelte Wände
Vollständig renoviert -
Grundriss vergrössern
-
BILDERGALERIE ANSEHEN
Die Grundrisse der 3-Zimmer-Wohnungen im „LandsPark“ sind alle flächenoptimiert, das heißt es wurde darauf geachtet die Verkehrsflächen so klein wie möglich zu halten und damit den meisten Platz in den Zimmern unterzubringen. Nach dem Betreten der Wohnung steht man in einem kleinen Eingangsflur, von dem das Badezimmer und die Zimmer abgehen. Die Küche erreicht man über das Zimmer hinter dem Bad, das sich aufgrund der Lage neben der Küche als Ess-, Wohn- und Arbeitszimmer anbietet. Die beiden Zimmer auf der anderen Seite sind keine Durchgangszimmer und somit als Schlaf-, Kinder-, Arbeits- oder Wohnzimmer geeignet. Im Gartenhaus sind die beiden potentiellen Schlafzimmer nach Süden zum Garten ausgerichtet und die Küche und das Durchgangszimmer nach Norden zum Innenhof.
Gartenhaus 2.OG links
EIGENTUMSWOHNUNG WE-Nr. 17
Wohnfläche ca. 65 m²
Zimmer 3
2. Obergeschoss
Zentralheizung / Energieträger Gas
Modernes, neues Wannenbad
Neuer Dielenfußboden in den Wohnräumen
Neuer Fliesenbelag in der Küche
Neuer Südbalkon zum Innenhof (genehmigt,
Anbau Anfang 2023)
Gespachtelte Wände
Vollständig renoviert
-
Gartenhaus 2.OG links
EIGENTUMSWOHNUNG WE-Nr. 17
Wohnfläche ca. 65 m²
Zimmer 3
2. Obergeschoss
Zentralheizung / Energieträger Gas
Modernes, neues Wannenbad
Neuer Dielenfußboden in den Wohnräumen
Neuer Fliesenbelag in der Küche
Neuer Südbalkon zum Innenhof (genehmigt,
Anbau Anfang 2023)
Gespachtelte Wände
Vollständig renoviert -
Grundriss vergrössern
-
BILDERGALERIE ANSEHEN
Die Grundrisse der 3-Zimmer-Wohnungen im „LandsPark“ sind alle flächenoptimiert, das heißt es wurde darauf geachtet die Verkehrsflächen so klein wie möglich zu halten und damit den meisten Platz in den Zimmern unterzubringen. Nach dem Betreten der Wohnung steht man in einem kleinen Eingangsflur, von dem das Badezimmer und die Zimmer abgehen. Die Küche erreicht man über das Zimmer hinter dem Bad, das sich aufgrund der Lage neben der Küche als Ess-, Wohn- und Arbeitszimmer anbietet. Die beiden Zimmer auf der anderen Seite sind keine Durchgangszimmer und somit als Schlaf-, Kinder-, Arbeits- oder Wohnzimmer geeignet. Im Gartenhaus sind die beiden potentiellen Schlafzimmer nach Süden zum Garten ausgerichtet und die Küche und das Durchgangszimmer nach Norden zum Innenhof.
Gartenhaus 2.OG rechts
EIGENTUMSWOHNUNG WE-Nr. 16
Wohnfläche ca. 71,5 m²
Zimmer 3
2. Obergeschoss
Zentralheizung / Energieträger Gas
Modernes, neues Wannenbad
Neuer Dielenfußboden in den Wohnräumen
Neuer Fliesenbelag in der Küche
Neuer Südbalkon zum Innenhof (genehmigt,
Anbau Anfang 2023)
Gespachtelte Wände
Vollständig renoviert
-
Gartenhaus 2.OG rechts
EIGENTUMSWOHNUNG WE-Nr. 16
Wohnfläche ca. 71,5 m²
Zimmer 3
2. Obergeschoss
Zentralheizung / Energieträger Gas
Modernes, neues Wannenbad
Neuer Dielenfußboden in den Wohnräumen
Neuer Fliesenbelag in der Küche
Neuer Südbalkon zum Innenhof (genehmigt,
Anbau Anfang 2023)
Gespachtelte Wände
Vollständig renoviert -
Grundriss vergrössern
-
BILDERGALERIE ANSEHEN
Die Grundrisse der 3-Zimmer-Wohnungen im „LandsPark“ sind alle flächenoptimiert, das heißt es wurde darauf geachtet die Verkehrsflächen so klein wie möglich zu halten und damit den meisten Platz in den Zimmern unterzubringen. Nach dem Betreten der Wohnung steht man in einem kleinen Eingangsflur, von dem das Badezimmer und die Zimmer abgehen. Die Küche erreicht man über das Zimmer hinter dem Bad, das sich aufgrund der Lage neben der Küche als Ess-, Wohn- und Arbeitszimmer anbietet. Die beiden Zimmer auf der anderen Seite sind keine Durchgangszimmer und somit als Schlaf-, Kinder-, Arbeits- oder Wohnzimmer geeignet. Im Gartenhaus sind die beiden potentiellen Schlafzimmer nach Süden zum Garten ausgerichtet und die Küche und das Durchgangszimmer nach Norden zum Innenhof.
Vorderhaus 1.OG rechts
EIGENTUMSWOHNUNG WE-Nr. 5
Wohnfläche ca. 66 m²
Zimmer 3
3. Oberschoss
Zentralheizung / Energieträger Gas
Modernes, neues Wannenbad
Neuer Dielenfußboden in den
Wohnräumen
Neuer Fliesenbelag in der Küche
Neuer Südbalkon zum Innenhof
(genehmigt, Anbau Anfang 2023)
Gespachtelte Wände
Vollständig renoviert
Die Grundrisse der 3-Zimmer-Wohnungen im „LandsPark“ sind alle flächenoptimiert, das heißt es wurde darauf geachtet die Verkehrsflächen so klein wie möglich zu halten und damit den meisten Platz in den Zimmern unterzubringen. Nach dem Betreten der Wohnung steht man in einem kleinen Eingangsflur, von dem das Badezimmer und die Zimmer abgehen. Die Küche erreicht man über das Zimmer hinter dem Bad, das sich aufgrund der Lage neben der Küche als Ess-, Wohn- und Arbeitszimmer anbietet. Die beiden Zimmer auf der anderen Seite sind keine Durchgangszimmer und somit als Schlaf-, Kinder-, Arbeits- oder Wohnzimmer geeignet. Im Vorderhaus sind die beiden potenziellen Schlafzimmer nach Norden zur Straße ausgerichtet und die Küche, der Balkon sowie das Durchgangszimmer nach Süden zum Innenhof.
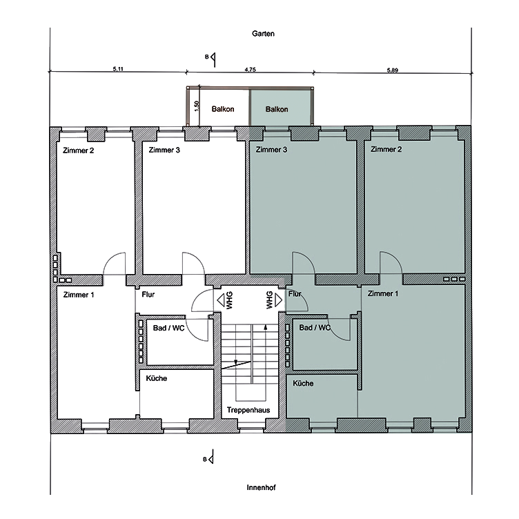
Vorderhaus 2.OG links
EIGENTUMSWOHNUNG WE-Nr. 6
Wohnfläche ca. 33 m²
Zimmer 1
2. Oberschoss
Zentralheizung / Energieträger Gas
Nach dem Betreten der Wohnung steht man in einem kleinen Eingangsflur, von dem das Badezimmer und der Wohnraum abgehen. Die Küche erreicht man über den Wohnraum. Beide sind zum Innenhof nach Süden ausgerichtet. Die Bilder zeigen eine baugleiche Wohnung und die Musterwohnung im Haus und sind beispielhaft. Die Wohnung ist zur Zeit vermietet und wird im derzeitigen Zustand verkauft.
Vorderhaus 2.OG mitte
EIGENTUMSWOHNUNG WE-Nr. 7
Wohnfläche ca. 40 m²
Zimmer 1
2. Oberschoss
Zentralheizung / Energieträger Gas
Nach dem Betreten der Wohnung steht man in einem kleinen Eingangsflur, von dem das Badezimmer, die Küche und der Wohnraum abgehen. Alle Räume sind zur Straße mit Blick Richtung Volkspark Friedrichshain nach Norden ausgerichtet. Die Wohnung ist zur Zeit vermietet und wird im derzeitigen Zustand verkauft. Die Bilder zeigen eine baugleiche Wohnung und die Musterwohnung im Haus und sind beispielhaft.
Vorderhaus 3.OG mitte
EIGENTUMSWOHNUNG WE-Nr. 10
Wohnfläche ca. 39 m²
Zimmer 1
3. Oberschoss
Zentralheizung / Energieträger Gas
Modernes, neues Wannenbad
Neuer Dielenfußboden in den
Wohnräumen
Neuer Fliesenbelag in der Küche
Neuer Südbalkon zum Innenhof
(genehmigt, Anbau Anfang 2023)
Gespachtelte Wände
Vollständig renoviert
Die Grundrisse der 1-Zimmer-Wohnungen im „LandsPark“ sind alle
flächenoptimiert, das heißt es wurde darauf geachtet die Verkehrsflächen
so klein wie möglich zu halten und damit den meisten Platz im Zimmer
unterzubringen.
Nach dem Betreten der Wohnung steht man in einem kleinen Eingangsflur,
von dem das Badezimmer, die Küche und der Wohnraum abgehen.
Alle Räume sind zur Straße mit Blick Richtung Volkspark Friedrichshain nach
Norden ausgerichtet.
Vorderhaus 3.OG rechts
EIGENTUMSWOHNUNG WE-Nr. 11
Wohnfläche ca. 67 m²
Zimmer 3
3. Oberschoss
Zentralheizung / Energieträger Gas
Modernes, neues Wannenbad
Neuer Dielenfußboden in den
Wohnräumen
Neuer Fliesenbelag in der Küche
Neuer Südbalkon zum Innenhof
(genehmigt, Anbau Anfang 2023)
Gespachtelte Wände
Vollständig renoviert
Die Grundrisse der 3-Zimmer-Wohnungen im „LandsPark“ sind alle flächenoptimiert, das heißt es wurde darauf geachtet die Verkehrsflächen so klein wie möglich zu halten und damit den meisten Platz in den Zimmern unterzubringen. Nach dem Betreten der Wohnung steht man in einem kleinen Eingangsflur, von dem das Badezimmer und die Zimmer abgehen. Die Küche erreicht man über das Zimmer hinter dem Bad, das sich aufgrund der Lage neben der Küche als Ess-, Wohn- und Arbeitszimmer anbietet. Die beiden Zimmer auf der anderen Seite sind keine Durchgangszimmer und somit als Schlaf-, Kinder-, Arbeits- oder Wohnzimmer geeignet. Im Vorderhaus sind die beiden potenziellen Schlafzimmer nach Norden zur Straße ausgerichtet und die Küche, der Balkon sowie das Durchgangszimmer nach Süden zum Innenhof.
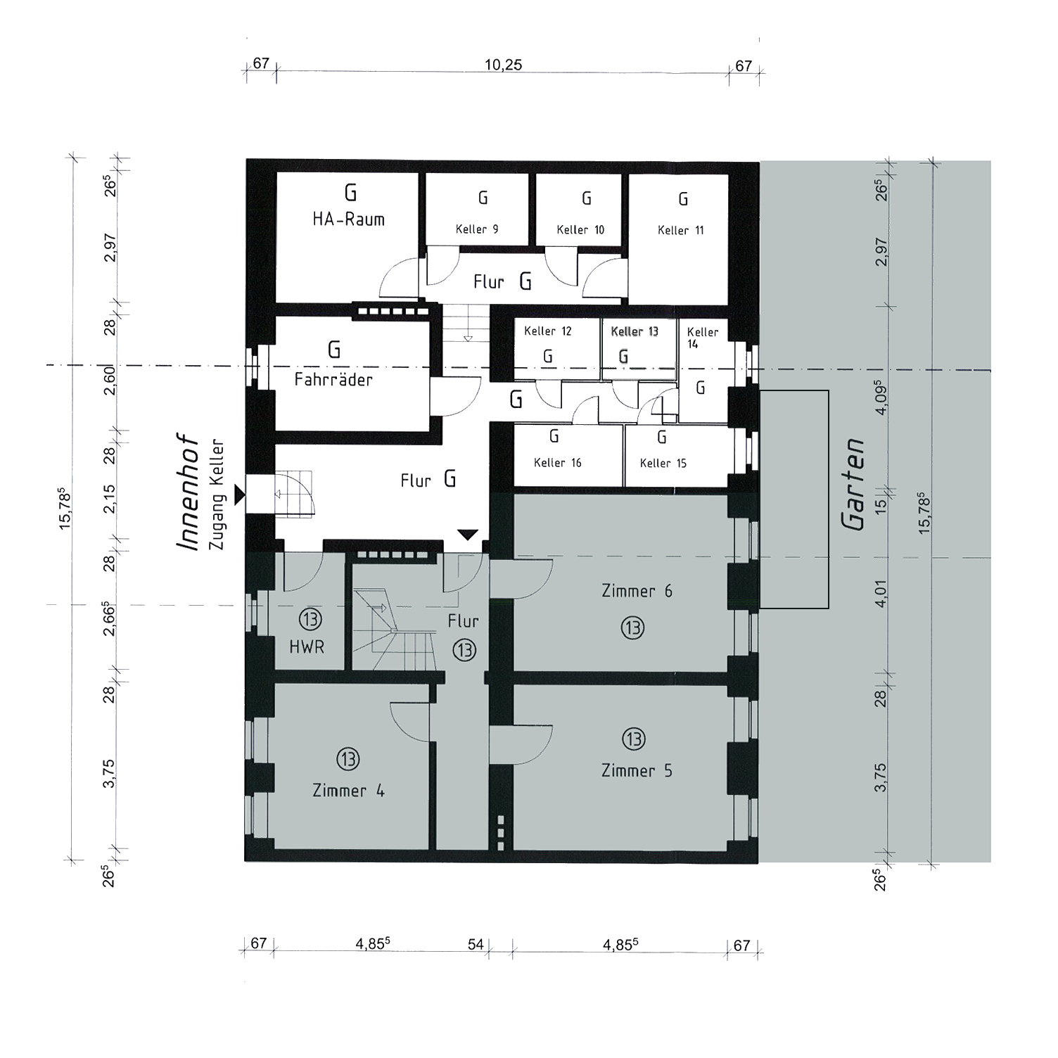
Gartenhaus EG, HP, ST rechts
Eigentumswohnung WE-Nr. 13
Wohnfläche ca. 165 m²
Zimmer 6
Souterrain, Erdgeschoss, Hochparterre, Garten, Terrasse, Balkon
Zentralheizung / Energieträger Gas
Modernes, neues Wannenbad, Duschbad
Neuer Dielenfußboden in den Wohnräumen
Neuer Fliesenbelag in der Küche
Gespachtelte Wände
Eigener, nach Süden ausgerichteter Garten (Sondernutzungsrecht)
Neuer, großer Balkon vor dem Wohnzimmer
Kellerabteil
Vollständig renoviert
Der Eingangsbereich der besonders ruhigen 6-Zimmer-Wohnung im Gartenhaus ist zur Südseite komplett verglast und führt über eine Terrasse in den zur Wohnung gehörenden Garten. Die gut geschnittene Wohnung erstreckt sich über Erdgeschoss, Souterrain und Hochparterre. Vier Zimmer und ein Badezimmer sind nach Süden zum Garten in Richtung der parkähnlichen Gartenanlage der Nachbarhäuser ausgerichtet. Zwei dieser Zimmer befinden sich im sonnigen Souterrain. Vor dem sonnigen Wohnzimmer im Hochparterre wurde im April 2023 ein gut 7,5m² großer Balkon angebaut, von dem eine Treppe in den Garten führt. 2 Zimmer und das zweite Bad sind zum Innenhof ausgerichtet. Neben Größe und Anzahl der Zimmer machen vor allem die gut nutzbaren Extra-Flächen in Garten, Terrasse und Balkon diese Wohnung zu einem besonderen Ort. Die gleichermaßen charmanten, wie außergewöhnlichen Details dieser Wohnung lassen sich nicht vollständig beschreiben, man muss sie sehen und erleben.
Vermietete Eigentumswohnungen/ Kapitalanlagen
Vorderhaus HP mitte
EIGENTUMSWOHNUNG WE-Nr. 2
Wohnfläche ca. 90 m²
Zimmer 4
Hochparterre
Der Grundriss der 4-Zimmer-Wohnungen im „LandsPark“ ist flächenoptimiert, das heißt, es wurde darauf geachtet die Verkehrsflächen so klein wie möglich zu halten und damit den meisten Platz in den Zimmern unterzubringen. Nach dem Betreten der Wohnung steht man in einem kleinen Eingangsflur, von dem zwei abgeschlossene Zimmer und ein weiterer kleiner Flur abgehen. Diese beiden Zimmer sind nach Süden zum Innenhof ausgerichtet. Über den zweiten Flur erreicht man die beiden anderen Zimmer, die Küche und das Badezimmer. Diese vier Räume sind zur Straße mit Blick Richtung Volkspark Friedrichshain nach Norden ausgerichtet. Die Bilder zeigen die Musterwohnung im Haus und sind beispielhaft für den Zustand nach Renovierung. Die Wohnung ist zur Zeit vermietet und wird im derzeitigen Zustand verkauft.
Vorderhaus 1.OG links
EIGENTUMSWOHNUNG WE-Nr. 3
Wohnfläche ca. 32m²
Zimmer 1
1. Oberschoss
Zentralheizung / Energieträger Gas
Nach dem Betreten der Wohnung steht man in einem kleinen Eingangsflur, von dem das Badezimmer und der Wohnraum abgehen. Die Küche erreicht man über den Wohnraum. Beide sind zum Innenhof nach Süden ausgerichtet. Die Wohnung wird derzeit renoviert, der Mieter zieht nach der Renovierung in die Wohnung ein.
Vorderhaus 1.OG mitte
EIGENTUMSWOHNUNG WE-Nr. 4
Wohnfläche ca. 37,4 m²
Zimmer 1
1. Oberschoss
Zentralheizung / Energieträger Gas
Nach dem Betreten der Wohnung steht man in einem kleinen Eingangsflur, von dem das Badezimmer, die Küche und der Wohnraum abgehen. Alle Räume sind zur Straße mit Blick Richtung Volkspark Friedrichshain nach Norden ausgerichtet. Die Wohnung ist frei und wird derzeit renoviert. Der Ausbaustandard der fertigen Wohnung wird dem der Musterwohnung entsprechen.
Gartenhaus 3.OG rechts
EIGENTUMSWOHNUNG WE-Nr. 18
Wohnfläche ca. 71 m²
Zimmer 3
3. Oberschoss
Zentralheizung / Energieträger Gas
Nach dem Betreten der Wohnung steht man in einem kleinen Eingangsflur, von dem das Badezimmer und die Zimmer abgehen. Die Küche erreicht man über das Zimmer hinter dem Bad, das sich aufgrund der Lage neben der Küche als Ess-, Wohn- und Arbeitszimmer anbietet. Die beiden Zimmer auf der anderen Seite sind keine Durchgangszimmer und somit als Schlaf-, Kinder-, Arbeits- oder Wohnzimmer geeignet. Im Gartenhaus sind die beiden potenziellen Schlafzimmer nach Süden zum Garten ausgerichtet und die Küche und das Durchgangszimmer nach Norden zum Innenhof. Zu der Wohnung gehört ein Teil des darüber liegenden, unausgebauten Dachbodens. Dieser Teil des Dachbodens gehört zum Sondereigentum der Wohnung (kein Sondernutzungsrecht). Momentan ist die Wohnung nicht direkt mit dem DG verbunden. Eine Genehmigung zum Ausbau zu Wohnzwecken gibt es nicht. Vorstellbar wäre ein Ausbau zu Hobbyraum und ggf. Zugang über eine „Raumspartreppe“ direkt von der Wohnung. Die Bilder zeigen die baugleiche Musterwohnung im Haus und sind beispielhaft für den Zustand nach Renovierung. Die Wohnung ist zur Zeit vermietet und wird im derzeitigen Zustand verkauft.
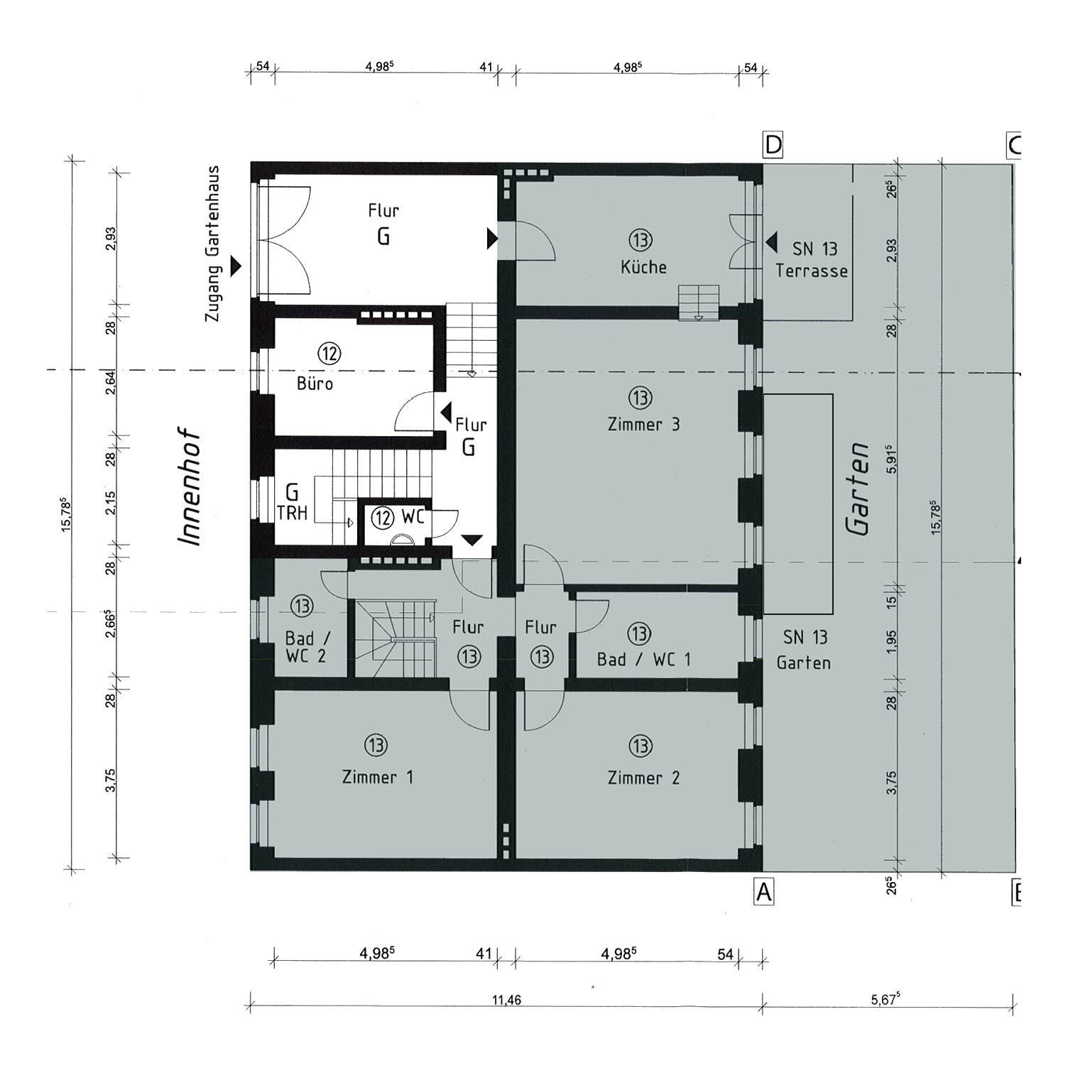
Gartenhaus 3.OG links
EIGENTUMSWOHNUNG WE-Nr. 19
Wohnfläche ca. 62,24 m²
Zimmer 3
3. Oberschoss
Nach dem Betreten der Wohnung steht man in einem kleinen Eingangsflur, von dem das Badezimmer und die Zimmer abgehen. Die Küche erreicht man über das Zimmer hinter dem Bad, das sich aufgrund der Lage neben der Küche als Ess-, Wohn- und Arbeitszimmer anbietet. Die beiden Zimmer auf der anderen Seite sind keine Durchgangszimmer und somit als Schlaf-, Kinder-, Arbeits- oder Wohnzimmer geeignet. Im Gartenhaus sind die beiden potenziellen Schlafzimmer nach Süden zum Garten ausgerichtet und die Küche und das Durchgangszimmer nach Norden zum Innenhof. Zu der Wohnung gehört ein Teil des darüber liegenden, unausgebauten Dachbodens. Dieser Teil des Dachbodens gehört zum Sondereigentum der Wohnung (kein Sondernutzungsrecht). Momentan ist die Wohnung nicht direkt mit dem DG verbunden. Eine Genehmigung zum Ausbau zu Wohnzwecken gibt es nicht. Vorstellbar wäre ein Ausbau zu Hobbyraum und ggf. Zugang über eine „Raumspartreppe“ direkt von der Wohnung. Die Bilder zeigen die baugleiche Musterwohnung im Haus und sind beispielhaft für den Zustand nach Renovierung. Die Wohnung ist zur Zeit vermietet und wird im derzeitigen Zustand verkauft.
Dachgeschossrohling/ Aufstockung
Die vorliegende Baugenehmigung beinhaltet eine Aufstockung des 5- geschossigen Altbaus (Souterrain, Hochparterre + 3 Obergeschosse) um 2 weitere Vollgeschosse zuzüglich Dachgeschoss. Geplant und genehmigt ist eine Aufteilung dieser 3 neuen Geschosse in 4-Wohneinheiten mit einer Gesamtwohnfläche von 390,20 m². Weiterhin ist der Anbau eines Balkons im neuen 4. OG, von zwei Dachterrassen im neuen Dachgeschoss und eines Aufzuges genehmigt. Der Dachgeschossrohling liegt über dem Vorderhaus. Auf Wunsch können Teile des 3. Obergeschosses mit ca. 106 m² zusätzlich erworben und mit der Aufstockung verbunden werden. Der Dachgeschossrohling im Vorderhaus umfasst die Einheiten 20-23. Diese werden nur zusammen veräußert, gerne auch an Baugruppen. Sämtliche Baumaßnahmen sind durch den Erwerber zu erbringen und die Kosten von ihm zu tragen. Es gibt bereits Interessenten für einzelne Wohnungen. Gerne stellen wir die Interessenten für Baugruppen einander vor.
Die Bauzeichnungen zeigen die Aufstockung des Vorderhauses (in Planung)/ Addition of storey to front building (in planning) Sowie die Ansicht der Hofseite mit Balkonen und Aufzug/ View of courtyard side with balconies and elevator (in planning)
Vorderhaus Dachgeschoss
Eigentumswohnung WE-Nr. 20
Rohling
Wohnfläche ca. 76,95 m²
4. Oberschoss
Der Dachgeschossrohling im Vorderhaus umfasst die Einheiten 20-23. Diese werden nur zusammen veräußert, gerne auch an Baugruppen. Für die Aufstockung und den Ausbau des Dachgeschosses liegt eine gültige Baugenehmigung vor. Sämtliche Baumaßnahmen sind durch den Erwerber zu erbringen und die Kosten von ihm zu tragen. Es gibt bereits Interessenten für einzelne Wohnungen. Gerne stellen wir die Interessenten für Baugruppen einander vor.
Vorderhaus Dachgeschoss
Eigentumswohnung WE-Nr. 21
Rohling
Wohnfläche ca. 72,23 m²
4. Oberschoss
Der Dachgeschossrohling im Vorderhaus umfasst die Einheiten 20-23. Diese werden nur zusammen veräußert, gerne auch an Baugruppen. Für die Aufstockung und den Ausbau des Dachgeschosses liegt eine gültige Baugenehmigung vor. Sämtliche Baumaßnahmen sind durch den Erwerber zu erbringen und die Kosten von ihm zu tragen. Es gibt bereits Interessenten für einzelne Wohnungen. Gerne stellen wir die Interessenten für Baugruppen einander vor.
Vorderhaus Dachgeschoss
Eigentumswohnung WE-Nr. 22
Rohling
Wohnfläche ca. 124,84 m²
4. Oberschoss
Der Dachgeschossrohling im Vorderhaus umfasst die Einheiten 20-23. Diese werden nur zusammen veräußert, gerne auch an Baugruppen. Für die Aufstockung und den Ausbau des Dachgeschosses liegt eine gültige Baugenehmigung vor. Sämtliche Baumaßnahmen sind durch den Erwerber zu erbringen und die Kosten von ihm zu tragen. Es gibt bereits Interessenten für einzelne Wohnungen. Gerne stellen wir die Interessenten für Baugruppen einander vor.
Vorderhaus Dachgeschoss
Eigentumswohnung WE-Nr. 23
Rohling
Wohnfläche ca. 116,18 m²
4. Oberschoss
Der Dachgeschossrohling im Vorderhaus umfasst die Einheiten 20-23. Diese werden nur zusammen veräußert, gerne auch an Baugruppen. Für die Aufstockung und den Ausbau des Dachgeschosses liegt eine gültige Baugenehmigung vor. Sämtliche Baumaßnahmen sind durch den Erwerber zu erbringen und die Kosten von ihm zu tragen. Es gibt bereits Interessenten für einzelne Wohnungen. Gerne stellen wir die Interessenten für Baugruppen einander vor.
Gewerbeeinheiten
Vorderhaus, ST/HP
GEWERBE NR. 1
Nutzfläche ca. 67 m²
Zimmer 4
Souterrain, Hochparterre
WC
Zentralheizung / Energieträger Gas
unrenoviert
Die Gewerbeeinheit im Vorderhaus hat insgesamt 4 Zimmer und ein separates WC. Drei Zimmer befinden sich im Souterrain und haben einen eigenen Eingang von der Straße. Das fünfte Zimmer, mit Fenster zum ruhigen Innenhof und das WC erreicht man über das Treppenhaus. Es besteht keine interne Verbindung zwischen den Räumen im Souterrain und im Hochparterre. Der jeweilige Eigentümer des Gewerbes kann sich bei Bedarf einen zusätzlichen Eingang vom Hof zu den Räumen in das Souterrain herstellen. Die Gewerbeeinheit hat eine Größe von insgesamt 67m² und wird vollständig renoviert übergeben
Gartenhaus, HP, rechts
GEWERBE NR. 12
Nutzfläche ca. 10 m²
Zimmer 1
Hochparterre
Zentralheizung / Energieträger Gas
vermietet/ nicht renoviert
Bei der Gewerbeeinheit im Gartenhaus handelt es sich um ein Zimmer von 10m² im Hochparterre. Die Einheit ist zur Zeit vermietet.
Grüne Oase
Großstadt und Ruhe passen auf den ersten Blick nicht zusammen. Blickt man aber in die nach hinten gelegene Außenanlage dieser Immobilie ändert sich dieser Eindruck sofort. Gepflegt, gelassen, geschützt. So kann man die Sicht von den Balkonen ins Grüne mit herrlichen Bäumen bei gleichzeitiger Helligkeit beschreiben. Hier lässt sich wunderbar eine Auszeit vom Großstadtleben nehmen, für aktuelle Projekte Energie sammeln oder im eigenen Garten der Maisonette-Wohnung mit Freunden und Familie die Seele baumeln lassen.
Alle Bilder: Zustand Aussenanlagen vor Sanierung und Umbau















